Beschrijving
        
            Appartement op de eerste verdieping met loggia, berging en parkeerplaats
Aan de Willem II Straat in Budel ligt dit goed onderhouden 3-kamer appartement met een loggia op de eerste verdieping met eigen parkeerplaats en berging in de parkeerkelder. Het appartement ligt in een rustige omgeving op loopafstand van het centrum.
ALGEMENE RUIMTES
Parkeerkelder
Eigen parkeerplaats en berging. De parkeerkelder is afgesloten middels een automatische roldeur.
Begane grond
Centrale entree met (video-)bellentableau en brievenbussen. Vanuit hier is er toegang tot de lift, het trappenhuis en de parkeerkelder.
APPARTEMENT
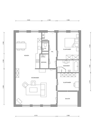
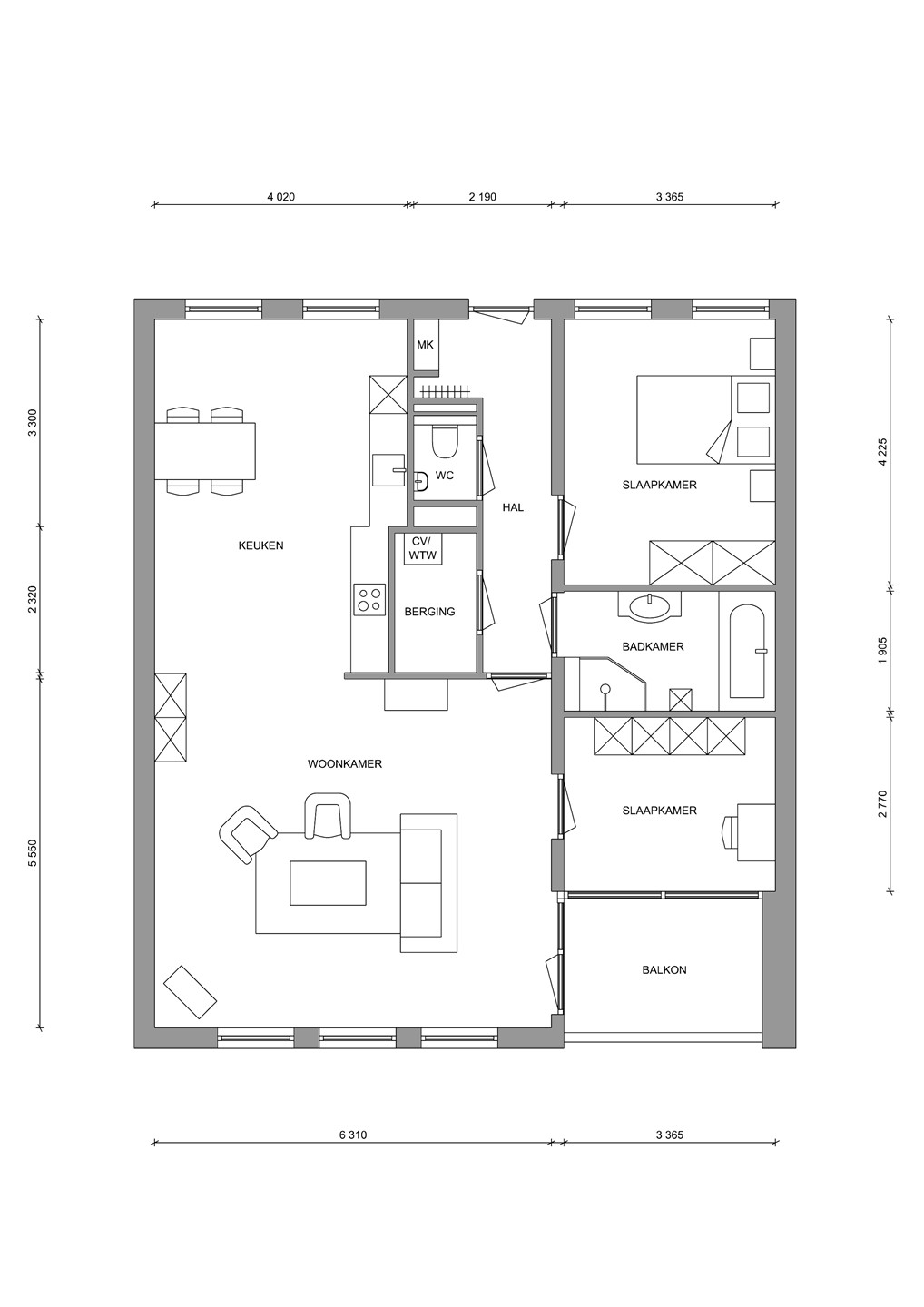
Indeling appartement
Toegang via ruime galerij tot het appartement. Ruime hal met toegang tot de meterkast (8 groepen en 2 aardlekschakelaars), slaapkamer, het toilet, de badkamer, berging en woonkamer. Mooie ruime slaapkamer. Separate toiletruimte met wandcloset en fonteintje. Royale geheel betegelde badkamer voorzien van een ligbad, inloopdouche, wastafel in meubel, spiegel en designradiator. Praktische berging voorzien van aansluitingen voor het witgoed. Deze ruimte heeft een opstelplaats voor de CV-ketel (Remeha 2019) en het Warmte Terug Win systeem. 
Ruime woonkamer (ca. 36 m²) met veel lichtinval door de grote raampartijen. Vanuit de woonkamer is er toegang tot het balkon. Vanuit de woonkamer is de 2e slaapkamer bereikbaar. Half open keuken met een rechte keuken  opstelling voorzien van een vaatwasser, koelkast, combi-magnetron, keramische kookplaat en afzuigkap. De keuken is ruim genoeg voor het plaatsen van een grote eettafel.  
Nagenoeg de gehele woning is voorzien van een laminaatvloer, met uitzondering van de badkamer, het toilet, deze hebben allen een tegelvloer en de berging is voorzien van een vinyl vloer.
Aanvullende informatie
• energielabel A+
• kunststof kozijnen met HR++ glas
• het appartement is volledig geïsoleerd 
• de maandelijkse bijdrage aan de VvE bedraagt € 165,42
• koper gaat ermee akkoord dat de afwikkeling van de verkoop geschiedt bij notaris 
  Op de Laak te Budel
• verkoper verlangt een waarborgsom/bankgarantie ter grootte van 10% van de       koopsom
Voor vragen, meer informatie of een vrijblijvende bezichtiging kun je contact opnemen met ons verkoopteam.