Beschrijving
Driekamerappartement | Twee balkons | Instapklaar | Rustige ligging nabij centrum
Op korte afstand van het centrum van Budel ligt dit goed onderhouden driekamerappartement op de eerste verdieping van een kleinschalig appartementencomplex. Het appartement beschikt over twee balkons, een ruime lichte woonkamer en een eigen berging op de begane grond. Dankzij de praktische indeling en nette afwerking is dit een prettig en betaalbaar appartement dat direct te betrekken is.
Het complex ligt op een rustige locatie met in de directe omgeving een grasweide en speelveldje. In 2025 zijn in het gehele complex nieuwe kunststof kozijnen met HR++ glas geplaatst. In het complex is geen lift aanwezig.
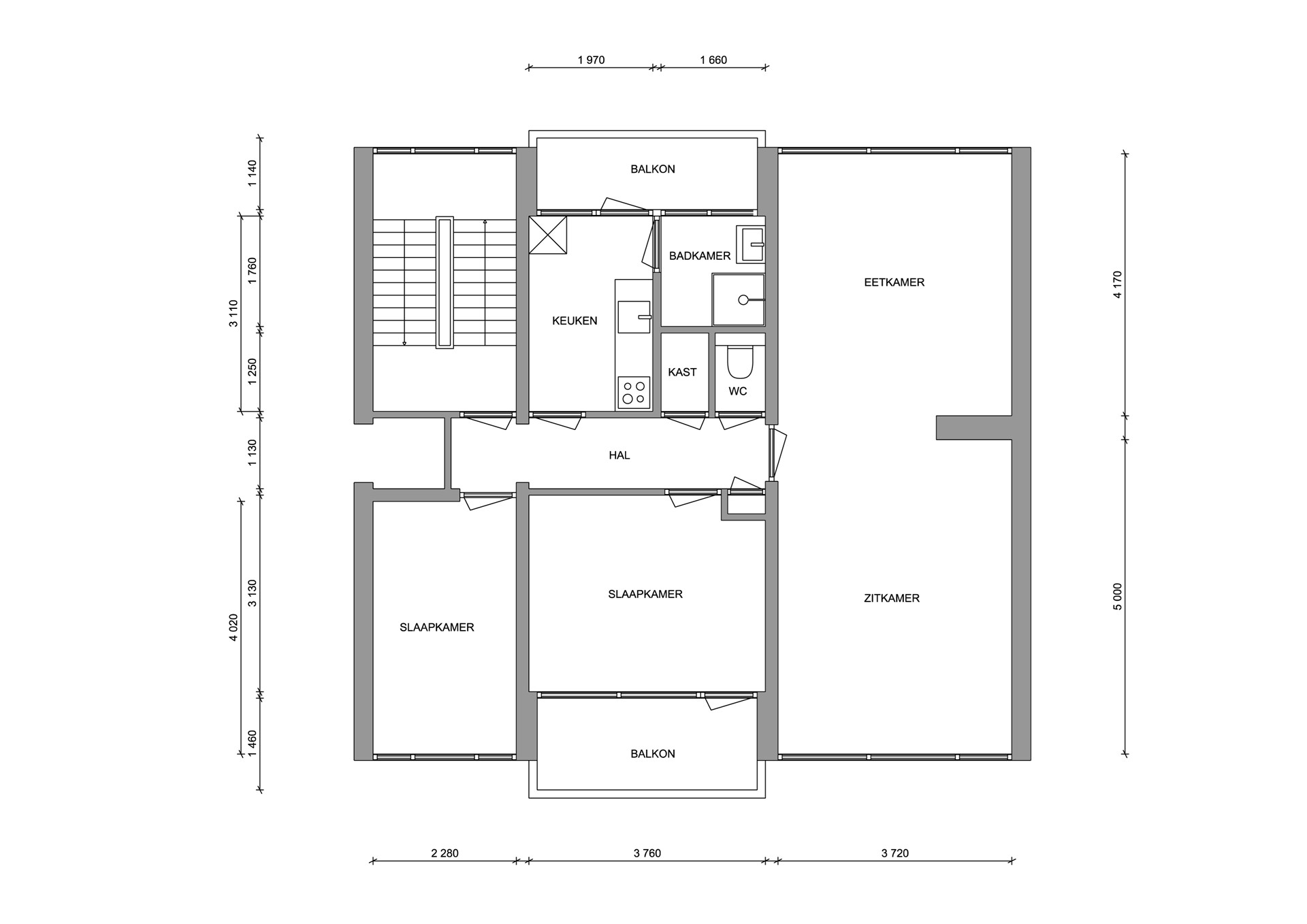
Het appartement heeft een woonoppervlakte van circa 75 m² en beschikt over twee slaapkamers, een ruime woonkamer, een dichte keuken en twee balkons met een gezamenlijke oppervlakte van circa 9 m².
Indeling
Begane grond
Het complex is te betreden via de centrale entree met brievenbussen en bellentableau. Vanuit de ontvangsthal is er toegang tot de eigen berging en de trapopgang naar de appartementen.
Eerste verdieping
Via de entree kom je in de hal met meterkast en een praktische bergkast.
De betegelde toiletruimte is uitgevoerd in een moderne kleurstelling en voorzien van een wandcloset en fonteintje.
De ruime en sfeervolle woonkamer van circa 35 m² is heerlijk licht dankzij de grote raampartijen aan beide zijden van de kamer.
De dichte keuken is geplaatst in een opstelling aan twee zijden en voorzien van een kunststof werkblad, spoelbak, vierpits gaskookplaat, afzuigkap en een koel-/diepvriescombinatie. Tevens bevinden zich hier de aansluitingen voor het witgoed. Vanuit de keuken is er toegang tot één van de balkons.
De nette, volledig betegelde badkamer beschikt over een douche met cabine, een wastafel in meubel en een spiegelkast.
Het appartement beschikt over twee ruime slaapkamers. De ouderslaapkamer heeft directe toegang tot het tweede balkon.
De hal, woonkamer, keuken en slaapkamers zijn voorzien van een laminaatvloer, wat zorgt voor een verzorgde en uniforme uitstraling.
Aanvullende informatie
• Blokverwarming middels een centrale ketel in het complex
• Balkons aan voor- en achterzijde met een totale oppervlakte van ca. 9 m²
• Nieuwe kunststof kozijnen met HR++ (2025)
• Servicekosten € 345,58 per maand (inclusief onder andere opstalverzekering en reservering voor groot onderhoud)
• Voorschot stookkosten ca. € 123,70 per maand
• Energielabel F (geldig tot 18 maart 2026)
• Voldoende parkeergelegenheid bij het appartementencomplex
• Goede verbinding met de A2 Eindhoven – Maastricht en het openbaar vervoer
• Verkoper verlangt een waarborgsom/bankgarantie van 10% van de koopsom
Interesse?
Dit appartement is met recht instapklaar en biedt alles wat je zoekt: een praktische indeling, twee balkons, een lichte woonkamer en een rustige ligging nabij het centrum. Een fijne plek om comfortabel te wonen in een betaalbare prijsklasse.
Maak snel een afspraak voor een bezichtiging en ontdek zelf wat dit leuke appartement te bieden heeft!