Beschrijving
Vrijstaand woonhuis met volop ruimte, karakter en een riante tuin
Aan de Nieuwstraat 39/39a in Budel ligt dit verrassend ruime en veelzijdige vrijstaande woonhuis. Een woning met veel mogelijkheden en een ware verborgen parel: de prachtige, diepe achtertuin met volop privacy. Hier geniet u van ruimte, groen en rust, terwijl u toch dicht bij alle voorzieningen woont.
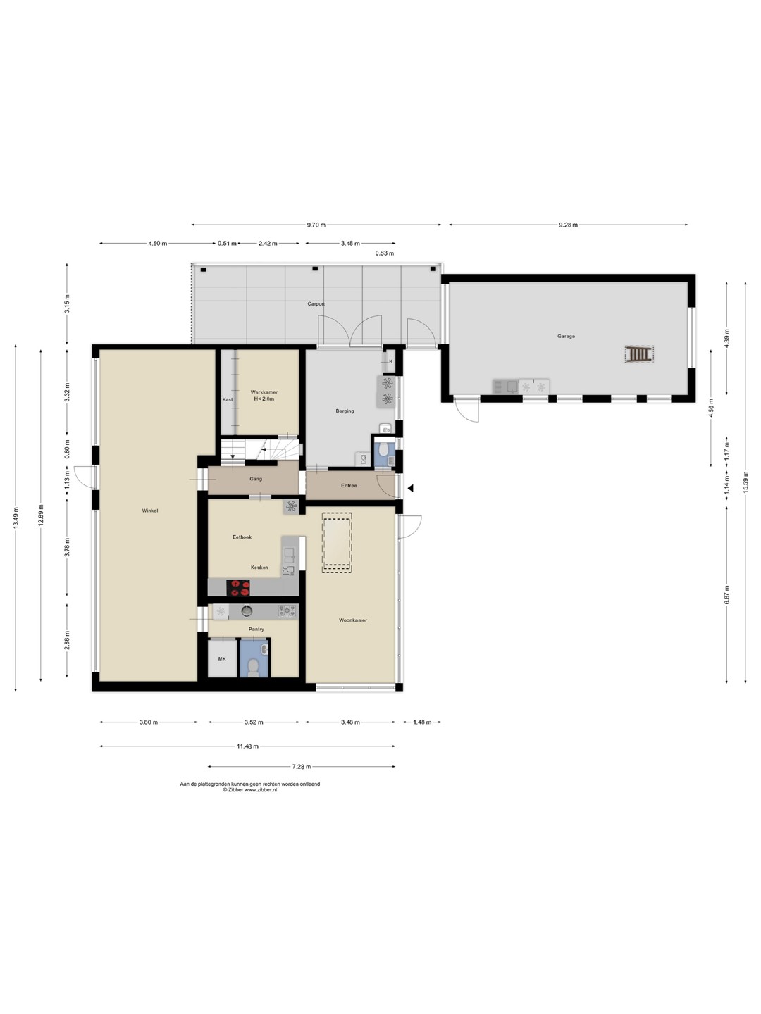
Indeling begane grond
De entree bevindt zich aan de zijkant onder een overkapping. Via de entree in de berging heeft u toegang tot het woonhuis. Vanuit de berging met meterkast en de opstelplaats voor de CV-ketel bereikt u de hal met het toilet, de trapopgang naar de eerste verdieping, de kelder, een opkamer, de keuken en het kantoorgedeelte.
De royale eetkeuken is uitgevoerd in een moderne hoekopstelling met greeploze witte fronten en een granieten werkblad. De keuken is voorzien van een inductiekookplaat, wokbrander, afzuigkap, vaatwasser, combi-magnetron en koelkast. Dankzij de tegelvloer met vloerverwarming is het hier behaaglijk koken en tafelen.
Aansluitend vindt u de lichte serre/woonkamer met grote raampartijen en een lichtkoepel, die een prachtig uitzicht biedt op de achtertuin. Ook hier zorgt de tegelvloer met vloerverwarming voor een aangenaam wooncomfort. De opkamer/werkkamer beschikt over praktische kastruimte en de kelder van ca. 13 m² biedt volop bergruimte.”
Aan de voorzijde van de begane grond bevindt zich momenteel een ruimte van ca. 60 m² met pantry, toiletruimte en een eigen meterkast met nutsaansluitingen (gas en elektra). Deze ruimte is momenteel in gebruik als kantoor, maar kan in de toekomst eenvoudig weer bij de woning betrokken worden. Denk bijvoorbeeld aan een royale woonkamer of een sfeervolle leefkeuken. Zo beschikt u nu al over een heerlijk huis met veel potentie, en in de toekomst over nóg meer wooncomfort. Tijdens een bezichtiging vertellen wij u uiteraard graag meer over de mogelijkheden van deze ruimte.
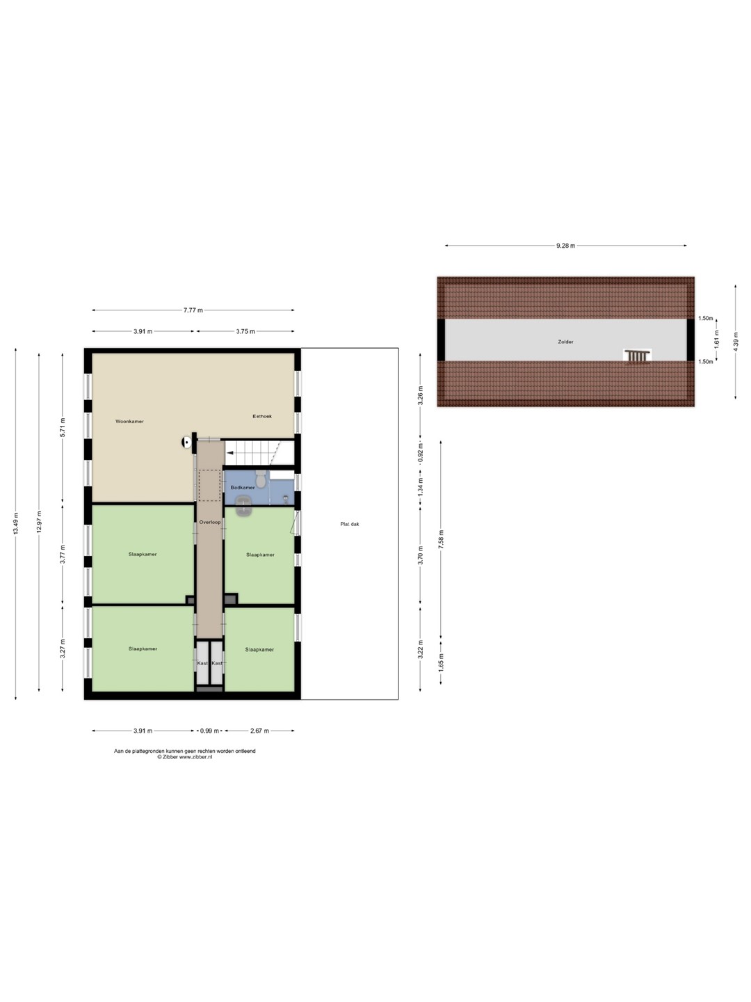
Eerste verdieping
De ruime overloop geeft toegang tot maar liefst vier royale slaapkamers, waarvan één met wastafel en twee met ingebouwde kast. Verder bevindt zich hier een badkamer met douche, wastafel, toilet en meubel. Daarnaast is er een gezellige L-vormige woonkamer voorzien van een eikenhouten vloer.
Zolder
Via een vlizotrap bereikt u de ruime bergzolder, die is opgedeeld in vier compartimenten.
Buitenruimte
Via de carport bereikt u de achtertuin en de garage. De vrijstaande garage (ca. 40 m²) is voorzien van elektra, geïsoleerde dakplaten, een gevelkachel, aanrecht met warm en koud water en aan de voor- en achterzijden een sectionaaldeur (waarvan één elektrisch). Boven de garage bevindt zich een zolder.
Direct achter de woning ligt een terras, gevolgd door de indrukwekkend diepe tuin met gazon, vijver, volwassen bomen en helemaal achterin een tuinhuis. De tuin biedt volop privacy en is een heerlijke plek om te genieten van rust en ruimte.
Wat kunt u nog meer verwachten?
• Grotendeels voorzien van dubbel glas (m.u.v. winkel, berging en toilet)
• Dakisolatie aanwezig
• Vloerverwarming aanwezig in woonkamer, keuken, gang en toilet (begane grond woonhuis)
• Voorzien van rolluiken aan de voorzijde van de eerste verdieping
• Energielabel E (geldig tot 15-09-2035)
• Woning met veel mogelijkheden
• Verkoper verlangt een waarborgsom/bankgarantie ter grootte van 10% van de koopsom
Voor vragen, meer informatie of een vrijblijvende bezichtiging kunt u contact opnemen met ons verkoopteam.