Beschrijving
Aan de Meidoornstraat 9 in Budel staat deze keurig onderhouden tweekapper met royale garage, diepe achtertuin en eigen oprit. De woning ligt op een perceel van 466 m² en beschikt over een woonoppervlakte van circa 105 m². Dankzij de rustige ligging nabij het centrum, de praktische indeling en de verzorgde staat biedt deze woning een solide basis met volop ruimte en mogelijkheden om naar eigen smaak te moderniseren en te verduurzamen.
De woning beschikt onder andere over een ruime woonkamer, een keuken met bijkeuken, vier slaapkamers en een badkamer, en heeft energielabel D.
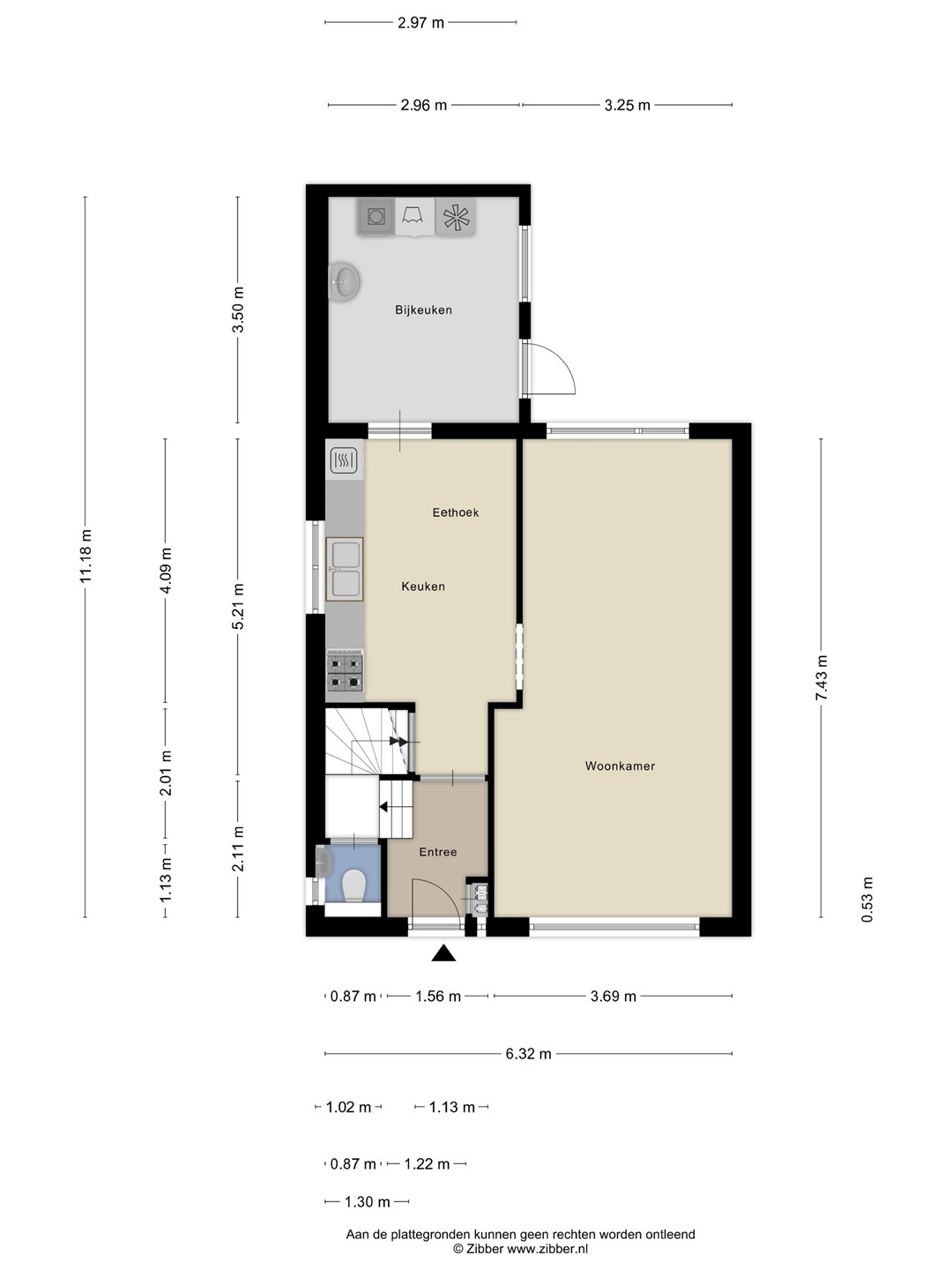
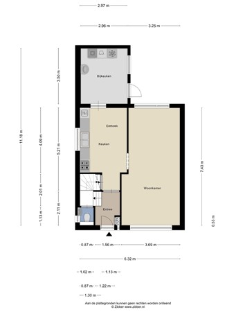
Begane grond
Via de entree aan de voorzijde kom je in de hal met meterkast en het toilet, dat via drie traptreden bereikbaar is en is voorzien van een wandcloset, fonteintje en raam. Vanuit de hal loop je door naar de keuken, die via een toog in verbinding staat met de lichte woonkamer. Dankzij de raampartijen aan voor- en achterzijde geniet je hier van een prettige, open sfeer.
De keuken is uitgevoerd in een houtkleurige rechte opstelling en uitgerust met een 4-pits gaskookplaat, geïntegreerde afzuigkap, dubbele spoelbak, combimagnetron en koelkast. De praktische trapkast biedt extra bergruimte. Hal, keuken en woonkamer zijn voorzien van een tegelvloer met vloerverwarming.
Aansluitend ligt de bijkeuken met een wastafel en aansluitingen voor wasmachine en droger. Vanuit hier loop je direct de achtertuin in.
Eerste verdieping
De overloop geeft toegang tot vier slaapkamers, waarvan twee met muurkast. De badkamer is compact en voorzien van douche en wastafel.
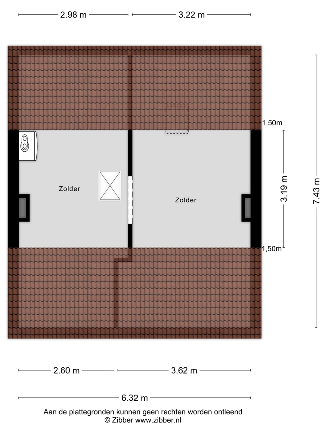
Bergzolder
Via een vlizotrap bereik je de bergzolder, ideaal voor extra opslagruimte.
Buiten
De woning heeft een royale voortuin met gazon en beplanting, en een ruime, beklinkerde oprit die plaats biedt aan meerdere auto’s. Via de poort kom je in de diepe achtertuin: keurig aangelegd met terras, gazon, borders, tuinverlichting en een sfeervol prieel.
De vrijstaande garage (ca. 42 m²) is voorzien van een elektrisch bedienbare kantelpoort en een zijdeur. Achter de garage bevindt zich bovendien een extra berging.
Wat mag je verder verwachten:
• Dak is na geïsoleerd (2010)
• Houten kozijnen, buitenzijde geschilderd in 2025
• Geheel voorzien van dubbel glas
• Vloerisolatie (ca. 1995)
• Grotendeels uitgerust met rolluiken
• Vloerverwarming in hal, woonkamer en keuken
• Energielabel D (geldig tot 10-11-2035)
• Goed onderhouden woning met mogelijkheden voor modernisering en verduurzaming
• Gunstige ligging nabij het centrum en uitstekende bereikbaarheid via o.a. de A2 Maastricht–Eindhoven
• Waarborgsom/bankgarantie van 10% van de koopsom van toepassing
Interesse?
Deze tweekapper heeft een fantastische basis om er met modernisering een eigentijds en energiezuinig thuis van te maken.
Plan snel een bezichtiging en ontdek zelf hoeveel potentie deze woning en haar royale tuin te bieden hebben!