Beschrijving
Nieuwbouw levensloop bestendige woning met berging en 18 zonnepanelen, gelegen nabij het centrum van Budel. Deze energiezuinige woning combineert modern wooncomfort met een praktische ligging en is volledig gelijkvloers – ideaal voor wie comfortabel en toekomstbestendig wil wonen.
Binnen ervaar je direct ruimte en licht. Dankzij de hoge plafonds en grote raampartijen voelt de woning heerlijk open en worden de seizoenen letterlijk naar binnen gehaald. Een perfecte basis om geheel naar eigen smaak af te werken.
Begane grond
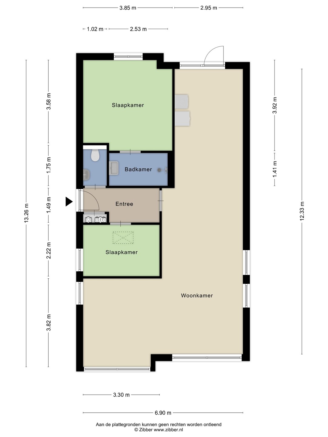
De entree bevindt zich aan de zijkant van de woning en geeft toegang tot de hal met meterkast, toiletruimte én een slaapkamer. Het toilet is gedeeltelijk betegeld en voorzien van een wandcloset en fonteintje.
De woonkamer is opvallend ruim en licht door het hoge plafond en de grote raampartijen. De woonkamer staat in open verbinding met de keuken, wat zorgt voor een prettige leefruimte met veel mogelijkheden. In het keukengedeelte bevindt zich tevens de aansluiting voor de wasmachine. Let op: de woning wordt opgeleverd zonder keuken en vloerafwerking, zodat je alles volledig naar eigen wens kunt realiseren.
De woning beschikt over twee slaapkamers.
De slaapkamer aan de achterzijde heeft direct toegang tot de volledig betegelde badkamer, die is voorzien van een inloopdouche en wastafel.
De slaapkamer aan de voorzijde, nabij de hal, beschikt over een praktische bergzolder die bereikbaar is via een vlizotrap – ideaal voor extra opslag.
Buiten
Aan de linker voorzijde is er een ruime oprit met parkeergelegenheid op eigen terrein. Mogelijkheid voor een tweede oprit aan de rechterzijde van de woning
Vanuit de keuken is er toegang tot de achtertuin. Dit is een fijne buitenruimte die nog volledig naar eigen inzicht kan worden ingericht – ideaal om hier je eigen tuinwensen te realiseren.
De ruime berging is geschikt voor verschillende doeleinden geschikt. Deze is voorzien van een glaspui en loopdeur en biedt tevens plaats aan de warmtepomp.
Wat kun je nog meer verwachten
• Verkoopprijs is Vrij Op Naam (geen overdrachtsbelasting en notariskosten voor koper)
• Zeer energiezuinige nieuwbouwwoning
• Energielabel A+++
• Voorzien van een warmtepomp
• Vloerverwarming in de gehele woning
• 18 Zonnepanelen
• Meterkast voorzien van 11 groepen
• Kunststof kozijnen met HR++ beglazing
• Alles gelijkvloers (levensloopbestendig)
• Goede bereikbaarheid via o.a. A2 Maastricht–Eindhoven
• Waarborgsom/bankgarantie van 10% van de koopsom van toepassing
Kortom: een moderne, comfortabele en duurzame nieuwbouwwoning op een centrale locatie in Budel, met alle vrijheid om het interieur volledig naar eigen smaak af te werken.
Interesse?
Neem gerust contact met ons op en ervaar zelf de ruimte en het comfort van Burg. van Houtstraat 53!