Beschrijving
Open Huizen Route zaterdag 28 maart van 11.00 tot 15.00 uur
U bent van harte welkom om vrijblijvend binnen te lopen en de woning te bezichtigen.
Aanmelden is niet nodig – u kunt zonder afspraak langskomen.
We kijken ernaar uit u te verwelkomen!
Prachtige vrijstaande woning met royale parkachtige tuin
Op een rustige, groene locatie treft u deze goed onderhouden vrijstaande woning met inpandige garage, sfeervol tuinhuis en een parkachtige achtertuin. Hier woont u met volop privacy, ruimte en een landelijk gevoel.
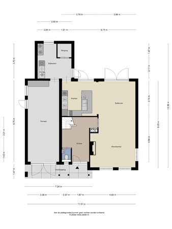
Indeling
Begane grond
Via het overdekte entree komt u in de ruime hal met garderobe, toiletruimte, meterkast en trapopgang. De royale woonkamer beschikt over openslaande deuren naar de tuin en een sfeervolle gashaard.
De open keuken is een absolute blikvanger en van het kwaliteitsmerk Poggenpohl. Deze hoogglans keuken in U-opstelling met een schiereiland met spoelgedeelte in antraciet en rood is volledig uitgerust met moderne apparatuur: een keramische kookplaat, vaatwasser, ingebouwd koffiezetapparaat, combi magnetron/oven, afzuigkap, inbouw gril/bakplaat, apothekerskast en een close-in boiler. Het plafond is voorzien van sfeervolle inbouwspotjes. Een keuken die luxe, stijl en praktisch gebruik naadloos combineert.
De aangrenzende bijkeuken biedt ruimte voor wasmachine en droger, een voorraadkast en directe toegang tot de inpandige garage. De garage is voorzien van een tegelvloer, vaste kastenwand, dubbele deuren en een oplaadpunt voor een elektrische auto.
De gehele begane grond (m.u.v. toilet en garage) is voorzien van een tegelvloer met vloerverwarming. Daarbij is het terras buiten uitgevoerd met dezelfde tegels in matte uitvoering, waardoor binnen en buiten stijlvol met elkaar verbonden worden.
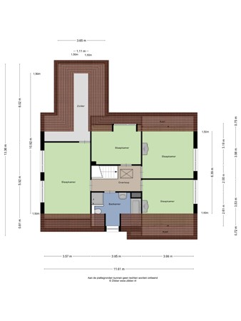
Eerste verdieping
De overloop geeft toegang tot vier slaapkamers en de badkamer. De ouderslaapkamer beschikt over een deur naar de zolderruimte en ingebouwde plafondspots met afstandsbediening. Twee slaapkamers zijn voorzien van een wastafelmeubel, één kamer heeft een dakkapel. De badkamer is compleet met ligbad, douche, wastafel en toilet.
Zolder
Via een vlizotrap bereikt u de praktische bergzolder, ideaal voor extra opbergruimte.
Buitenruimte
De woning beschikt over een dubbele oprit en een verzorgd aangelegde voor- en zijtuin met hoogwaardig kunstgras, waardoor de woning altijd een verzorgde uitstraling heeft. De achtertuin is een waar paradijs: ruim, groen, met volwassen bomen, borders, vijver en volop privacy. Een groot terras grenst direct aan de woning met aangrenzend een stenen berging – ideaal voor tuinspullen en fietsen. Daarnaast is er een praktisch tuinhuis, uitgevoerd met een aluminium pui, siergrindvloer en een bar. Een fijne plek voor een gezellig samenzijn of een ontspannen avond in de tuin.
’s Avonds komt de tuin extra sfeervol tot zijn recht dankzij de 12 volt tuinverlichting.
Wat maakt deze woning zo bijzonder?
• Volledig geïsoleerd en voorzien van houten kozijnen met dubbel glas
• Royale woonkamer met openslaande deuren & gashaard
• Luxe Poggenpohl-keuken met hoogwaardige apparatuur
• 4 ruime slaapkamers
• Inpandige, verwarmde garage mét oplaadpunt elektrische auto
• Parkachtige tuin rondom de woning met eigen waterbron
• Vrije ligging aan de achterzijde, geen achterburen
• Energielabel C (geldig tot 04-09-2035)
• Verkoper verlangt een waarborgsom/bankgarantie van 10% van de koopsom
Bent u op zoek naar een instapklare gezinswoning met veel ruimte, een garage en zonnige tuin?
Neem dan vandaag nog contact op met ons verkoopteam voor meer informatie of een vrijblijvende bezichtiging.
Wij laten u deze woning graag van dichtbij zien!