Beschrijving
        
Op een prachtige en goede locatie aan de Molenheide 19 in Soerendonk ligt deze vrijstaande woning met garage en riante tuin. De woning is goed onderhouden en biedt volop mogelijkheden om naar eigen wens te moderniseren. Hier woon je vrij en ruim, met volop leefruimte zowel binnen als buiten.
In het dorp Soerendonk zijn diverse horecagelegenheden, een basisschool en sport- en zorgvoorzieningen aanwezig. Voor een uitgebreider winkelaanbod en overige voorzieningen kun je terecht in de nabijgelegen dorpen Budel en Maarheeze. Het NS-station in Maarheeze ligt op korte afstand, en de A2 (Maastricht–Eindhoven) is binnen enkele minuten bereikbaar.
De woning beschikt onder andere over een lichte woonkamer met open keuken, een praktische bijkeuken, vier slaapkamers (waarvan één op zolder) en een vrijstaande garage. De woning is gelegen op een royaal perceel van 1.725 m², met een woonoppervlakte van ruim 155 m², voorzien van energielabel C en 15 zonnepanelen.
Indeling
Begane grond
Via de diepe voortuin en de oprit – geschikt voor meerdere auto’s – bereik je de entree van de woning. De ruime hal geeft toegang tot de toiletruimte, meterkast, trapopgang naar de eerste verdieping, de keuken en de woonkamer.
De ruime en lichte woonkamer beschikt over een tegelvloer met vloerverwarming, inbouwspots en airconditioning. De deels gerenoveerde open keuken in hoekopstelling is uitgevoerd in het wit met een (nieuw) kunststof werkblad en voorzien van een inductiekookplaat (2025), afzuigkap (2025), koelkast en close-in boiler.
Aangrenzend bevindt zich de bijkeuken met muurkast, witgoedaansluitingen en een achterdeur naar de tuin. 
Eerste verdieping
De overloop geeft toegang tot drie slaapkamers, waarvan de ouderslaapkamer aan de voorzijde is voorzien van airconditioning en directe toegang tot de badkamer.
Eén van de slaapkamer aan de achterzijde beschikt over een wastafel.
De badkamer is zowel via de ouderslaapkamer als via de overloop bereikbaar en is uitgerust met een ligbad, wastafel en toilet – functioneel, maar aan modernisering toe.
Zolderverdieping
Via een vaste trap bereik je de zolder. Hier vind je een ruime vierde slaapkamer met dakkapel en wastafel, evenals twee aparte bergruimtes. In één van deze ruimtes bevindt zich de CV-ketel (Remeha, 2014).
Buitenruimte
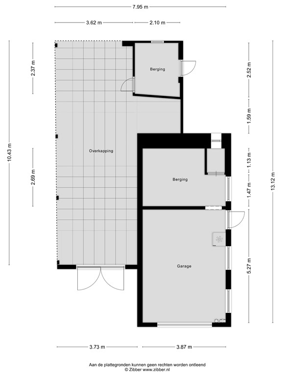
De vrijstaande garage is voorzien van elektra, water- en gasaansluiting, een kantelpoort, een groepenkast en de unit voor de zonnepanelen. Vanuit de garage is er doorgang naar een berging, en naast deze berging en garage bevindt zich nog een ruime overkapping, ideaal voor bijvoorbeeld één (of meerdere) aanhangers. Achter de overkapping bevindt zich nog een grondwaterput (gemeld bij waterschap).
Rondom de woning ligt een keurig aangelegde tuin met gazon, volwassen beplanting en twee terrassen waarvan één met overkapping. De tuin is afgescheiden met een muur, en daarachter ligt een royaal extra stuk grond met diverse kassen en tuingrond – perfect voor liefhebbers van tuinieren of het kweken van eigen groenten en planten.
Wat kun je nog meer verwachten
• 15 zonnepanelen (geplaatst in 2021)
• Vrijwel geheel voorzien van rolluiken (m.u.v. voordeur en dakkapel)
• Energielabel C (geldig tot 10-10-2035)
• Vier slaapkamers
• Grote garage, berging en royale oprit
• Ruim perceel van 1.725 m²
• Rustige en centrale ligging in Soerendonk
• Goede bereikbaarheid via de snelweg A2 (Maastricht–Eindhoven) en NS-station Maarheeze
• Koper dient rekening te houden met moderniseringskosten
• Verkoper verlangt een waarborgsom/bankgarantie van 10% van de koopsom
Interesse?
Deze vrijstaande woning biedt ruimte, rust en potentie op een schitterende locatie in Soerendonk. Perfect voor wie graag vrij woont, met volop mogelijkheden om het huis naar eigen smaak te moderniseren.
Neem contact met ons op voor een bezichtiging – we laten je deze woning graag persoonlijk zien!
         
     
        Plattegronden
            
                
                
                    178138114_1583741_molen_begane_grond_first_design_20251017_db1db9.jpg
                
             
            
                
                
                    178138114_1583741_molen_eerste_verdiepi_first_design_20251017_318520.jpg
                
             
            
                
                
                    178138114_1583741_molen_tweede_verdiepi_first_design_20251017_401d3f.jpg
                
             
            
                
                
                    178138114_1583741_molen_garage_first_design_20251017_0f70ff.jpg