Beschrijving

In een prettige woonomgeving in Budel, gelegen in de geliefde wijk Midbuul, ook wel bekend als de Vogeltjesbuurt, staat deze geschakelde twee-onder-een-kapwoning met garage, heerlijke achtertuin en gekenmerkt door de fraaie architectuur. Een fijne gezinswoning met een praktische indeling en volop ruimte, zowel binnen als buiten. De woning beschikt onder andere over een ruime woonkamer, halfopen keuken, bijkeuken, drie slaapkamers, een royale badkamer en een ruime zolder die via een vaste trap bereikbaar is. Met een woonoppervlakte van ca. 121 m², een perceel van 265 m² en een verzorgde afwerking is dit een ideale woning voor wie comfortabel wil wonen.

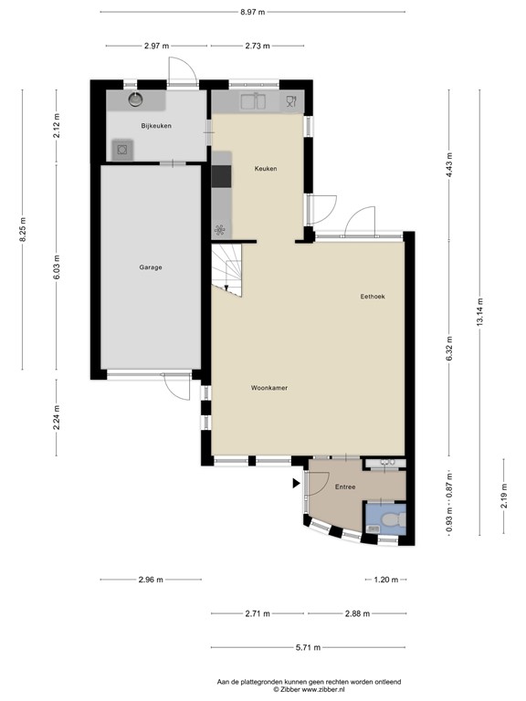
Begane grond
De hal biedt toegang tot de meterkast, het toilet en de woonkamer.
De ruime woonkamer (ca. 36 m²) is afgewerkt met een eikenhouten vloer, lichte wanden met spachtelputz en een spuitwerk plafond. Vanuit de woonkamer is er toegang tot het terras en de trapopgang naar de eerste verdieping.

De halfopen keuken is praktisch ingericht met aan twee zijden een rechte keukenopstelling. Aan de ene zijde bevindt zich het kookgedeelte en aan de andere zijde de spoelbak. De keuken is voorzien van een keramische kookplaat, RVS afzuigkap, vaatwasser, oven en koelkast. Via de keuken is er een achterdeur naar het terras.

Aansluitend bevindt zich de bijkeuken, uitgerust met een extra keukenopstelling, de aansluitingen voor wasmachine en droger en een deur naar de tuin. Vanuit de bijkeuken is de garage binnendoor bereikbaar.

Eerste verdieping
De overloop geeft toegang tot drie slaapkamers en de vaste trap naar de zolder.
De grootste slaapkamer aan de voorzijde beschikt over een balkon. De tweede slaapkamer aan de voorzijde is voorzien van een praktische muurkast.

De verzorgde badkamer is ingericht met een ligbad, douchecabine, wastafelmeubel, designradiator en toilet.

Tweede verdieping
De zolder is bereikbaar via een vaste trap en bestaat uit een ruime open zolderkamer met aan beide zijden bergruimte onder de kapschuinte. Deze ruimte biedt de mogelijkheid om een extra kamer te realiseren.
Daarnaast bevinden zich hier de CV-installatie (Vaillant, 2017) en de aansluitmogelijkheden voor wasmachine en droger.

Buiten
Aan de voorzijde ligt een netjes onderhouden voortuin met een ruime oprit naar de garage. De garage is voorzien van een kantelpoort en een loopdeur. Zowel de garage als de oprit bieden parkeergelegenheid op eigen terrein.
De verzorgd aangelegde achtertuin beschikt over een royaal terras, gazon en diverse beplanting. Tegen de achtergevel is een elektrisch bedienbare zonneluifel geplaatst, waardoor je ook op warme dagen comfortabel buiten kunt zitten.

Wat kun je nog meer verwachten
• De woning is vanuit de bouw geïsoleerd
• Altijd keurig onderhouden
• CV-ketel Vaillant (2017)
• Gedeeltelijk voorzien van rolluiken
• Energielabel C (geldig tot 21-01-2036)
• Goede bereikbaarheid via o.a. A2 Maastricht–Eindhoven
• Waarborgsom/bankgarantie van 10% van de koopsom van toepassing

Interesse?
Neem gerust contact met ons op. Wij laten je Patrijslaan 53 in Budel graag persoonlijk ervaren!

Kenmerken