Beschrijving
Tussenwoning | Garage | Serre
Ruime tussenwoning met garage, serre en berging.
De woning beschikt over een lichte en ruime woonkamer, een praktische open keuken, een serre over de volledige breedte van de woning en drie slaapkamers op de eerste verdieping. Daarnaast is er een verzorgde achtertuin met berging, achterom en een garage van ca. 18 m².
De woning beschikt over kunststof kozijnen met dubbel glas. Een complete gezinswoning met verrassend veel leefruimte.
Begane grond
Via de entree aan de voorzijde kom je in de hal met toegang tot de toiletruimte en de woonkamer. De ruime woonkamer is voorzien van grote raampartijen, wat zorgt voor veel natuurlijke lichtinval. De vloer is afgewerkt met tegels en de wanden zijn uitgevoerd in spachtelputz, gecombineerd met een stucwerkplafond. De trap naar de eerste verdieping bevindt zich in de woonkamer.
De open keuken is praktisch ingericht en ligt uit het zicht van de zithoek. De rechte keukenopstelling in witte kleurstelling is voorzien van een granieten aanrechtblad en beschikt over een inductiekookplaat, afzuigkap (onder kast), vaatwasser, combi-magnetron en koelkast.
Aan de achterzijde van de woning is over de volledige breedte een serre geplaatst met tegelvloer en een grote schuifpui naar het terras. Het dak is uitgevoerd in polycarbonaat en dankzij de elektrische luifel kan de zon eenvoudig worden geweerd. Een heerlijke plek om het hele jaar door van binnen én buiten te genieten.
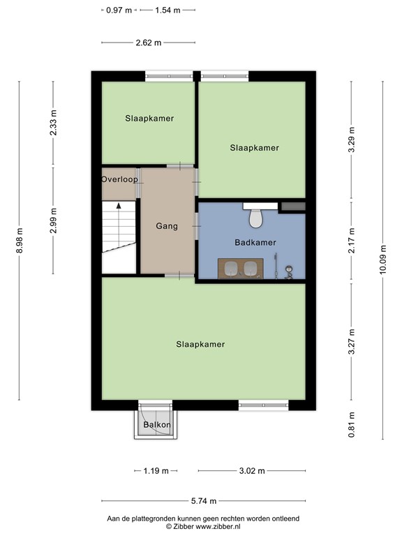
Eerste verdieping
Op de eerste verdieping bevinden zich drie slaapkamers. De ruime ouderslaapkamer ligt aan de voorzijde van de woning en beschikt over een klein balkon. De badkamer is ruim opgezet en uitgevoerd met een dubbele wastafel in meubel, een inloopdouche met glaswand, een wandcloset en een designradiator.
Buitenruimte en garage
De achtertuin is keurig aangelegd met bestrating en borders en biedt een verzorgde en rustige buitenruimte. Achter in de tuin bevindt zich een berging met de opstelplaats voor wasmachine en droger, een wastafel met warm en koud water én een voorbereide aansluiting voor het realiseren van een douche. Naast de berging is een kleine overkapping die toegang geeft tot het achtergelegen pad en de garage.
De garage (circa 18 m²) is gelegen achter de woning en is ideaal voor het stallen van een auto, fietsen of extra opslag.
Pluspunten op een rij:
• Keurig onderhouden tussenwoning
• Ruime en lichte woonkamer
• Serre over de volledige breedte van de woning
• 3 slaapkamers
• Verzorgde achtertuin met berging en achterom
• Eigen garage (ca. 18 m²)
• Kunststof kozijnen met dubbel glas
• Energielabel C (geldig tot 4-12-2035)
•Uitstekende bereikbaarheid via diverse uitvalswegen, waaronder A2 Maastricht–Eindhoven
• Verkoper verlangt een waarborgsom/bankgarantie van 10% van de koopsom
Kortom: een complete, goed onderhouden gezinswoning met veel leefruimte. Maak snel een afspraak voor een bezichtiging en laat je verrassen door de mogelijkheden die deze woning te bieden heeft!
Plattegronden
180328873_1597575_europ_begane_grond_first_design_20251212_149ed3.jpg
180328873_1597575_europ_eerste_verdiepi_first_design_20251212_b9df38.jpg
180328873_1597575_europ_berging_first_design_20260108_ad47a1.jpg
180328873_1597575_europ_garage_first_design_20251212_78d464.jpg
Energielabel C - Vastgoedpro.jpg