Beschrijving

Op een rustige en kindvriendelijke locatie in de gewilde wijk Midbuul aan De Heggemus 3 in Budel ligt dit goed onderhouden vrijstaand geschakeld woonhuis met garage, uitbouw en een zonnige, onderhoudsvriendelijke tuin. Hier woon je heerlijk aan een groen plantsoen, met volop leefruimte en hedendaags comfort, in een woning die zowel sfeer als functionaliteit biedt. De woning beschikt o.a. over een lichte woonkamer met pelletkachel, ruime tuinkamer, moderne open keuken, bijkeuken en garage op de begane grond, en drie mooie slaapkamers en een luxe badkamer op de eerste verdieping. De woning is gesitueerd op een perceel van 244 m², heeft een woonoppervlakte van ca. 110 m² en beschikt over energielabel B.

Begane grond
Bij binnenkomst in de hal tref je de meterkast, de toiletruimte, de trapopgang naar de eerste verdieping en de toegang tot de woonkamer.
De lichte woonkamer is afgewerkt met een houtlook tegelvloer en beschikt over een pelletkachel en airco – ideaal voor zowel warme als koude dagen. Onder de trap bevindt zich een praktische provisiekast.
De aangebouwde tuinkamer met dakkoepel zorgt voor extra leefruimte en een heerlijke lichtinval. Via de dubbele schuifpui stap je zo het terras en de onderhoudsvriendelijke tuin in.
De open keuken heeft een moderne, lichte inrichting in L-opstelling met een massief aanrechtblad en is voorzien van o.a. een inductiekookplaat en geïntegreerde afzuigkap. De oven en koelkast zijn fraai in een aparte wandkast geplaatst.
Aansluitend vind je de bijkeuken met opstelplaats voor witgoed, een uitstortgootsteen (warm en koud water), een achterdeur naar de tuin en toegang tot de garage.
De garage (ca. 6,25 m x 2,92 m) is bereikbaar via de oprit met kantelpoort met loopdeur en vanuit de bijkeuken.

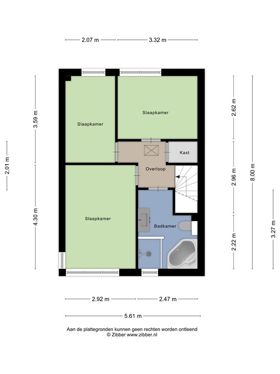
Eerste verdieping
De overloop met handige muurkast geeft toegang tot drie slaapkamers. De ouderkamer aan de voorzijde is voorzien van een airco.
De luxe badkamer is modern uitgevoerd met een ruime inloopdouche, ligbad, wandcloset en een wastafelmeubel met dubbele spiegelkast.
Zolder
Via een vlizotrap bereik je de volledig begaanbare zolderberging met CV-opstelling (Remeha, 2021) en een klein dakraam – perfect voor extra opslagruimte.

Buiten
Aan de voorzijde van de woning geniet je van een vrij uitzicht op een groen plantsoen.
De achtertuin is volledig omheind, grotendeels bestraat en voorzien van verzorgde borders met beplanting. Direct achter de woning bevindt zich een overkapping, een heerlijke plek om te ontspannen in alle privacy. De garage is via de oprit bereikbaar en biedt samen met de ruime oprit voldoende parkeergelegenheid op eigen terrein.

Wat kun je nog meer verwachten
• Grotendeels voorzien van dubbelglas
• CV-ketel Remeha (2021)
• Vrijwel volledig voorzien van rolluiken (m.u.v. deuren en schuifpui)
• 14 zonnepanelen (lease, geplaatst in 2019 – contract over te nemen – 15 jaar garantie t/m 2034, kosten € 43,18 p/m)
• Energielabel …. (geldig tot …..)
• Rustige ligging aan een plantsoen in de gewilde wijk Midbuul
• Onderhoudsvriendelijke tuin met overkapping 
• Een gedeelte van de voortuin is gehuurd van de gemeente (jaarlijkse kosten € 55,-)
• Goede bereikbaarheid door de diverse uitvalswegen, waaronder de snelweg A2 Maastricht-Eindhoven;
• Verkoper verlangt een waarborgsom/bankgarantie ter grootte van 10% van de koopsom

Interesse?
Neem dan contact met ons op – wij laten je De Heggemus 3 graag persoonlijk zien!

Kenmerken