Beschrijving
Vrijstaand | Uitgebouwd | Instapklaar | Nabij centrum & basisschool
Op loopafstand van de basisschool en dicht bij het centrum van Budel staat deze volledig gerenoveerde vrijstaande woning met berging op een ruim perceel. De woning is in 2017 vanaf casco opnieuw opgebouwd en volledig (na)geïsoleerd. Dankzij de kunststof kozijnen, moderne afwerking en hoge afwerkingskwaliteit is dit een woning die je zó kunt betrekken – instapklaar in de volle zin van het woord!
De woning beschikt onder andere over een ruime lichte woonkamer, een uitgebouwde moderne open keuken, een praktische bijkeuken en garage op de begane grond. Op de eerste verdieping vind je drie ruime slaapkamers en een moderne badkamer. Het geheel ligt op een perceel van 702 m² met een woonoppervlakte van ca. 135 m² en beschikt over energielabel B.
Indeling
Begane grond
Binnenkomst via de hal met een massief eiken houten trapopgang, meterkast en toiletruimte.
De woonkamer is ruim en licht, voorzien van vloertegels in houtlook met vloerverwarming die doorlopen in de keuken, bijkeuken en het toilet. De vloerverwarming is in 4 afzonderlijke groepen opgesplitst en dient als hoofdverwarming.
De moderne open keuken bevindt zich in de uitbouw aan de achterzijde van de woning en is uitgevoerd in een ruime hoekopstelling met een composiet aanrechtblad, 4-pits gaskookplaat met wokbrander, afzuigkap, vaatwasser, koelkast en oven.
Dankzij de royale opzet is er genoeg ruimte voor een grote eettafel voor het hele gezin, waardoor koken en tafelen hier perfect samenkomen.
Via de grote schuifpui met dubbele deuren stap je zo de achtertuin in.
De bijkeuken is praktisch ingericht met maatwerkkasten, aansluitingen voor de wasmachine en droger, een wasbak met kraan en een inbouwdiepvries. Een deel van de kast is bovendien uitgevoerd als garderobekast met schoenenlades en herbergt tevens de CV-ketel (Remeha, 2016). Vanuit de bijkeuken is eveneens toegang tot de tuin.
Eerste verdieping
Via de overloop bereik je drie ruime slaapkamers, allemaal voorzien van een pvc-vloer en inbouwspots.
De moderne badkamer is compleet uitgerust met een ligbad, een inloopdouche met handige nisjes voor doucheproducten en een glazen deur, evenals een wastafelmeubel, wandkast en spiegelkast. Er is een aansluiting voor een tweede toilet aanwezig, dat desgewenst op eenvoudige wijze kan worden geplaatst.
Bergzolder
Via een vlizotrap bereikbare bergzolder, ideaal voor extra opslagruimte.
Buiten
De voortuin is verzorgd aangelegd met gazon en beplanting.
Aan de rechterzijde ligt een oprit, geschikt voor meerdere auto’s, waar zich eveneens een houten poort bevindt om achterom te komen. Aan de linkerzijde van de woning is bovendien een houten poort die toegang biedt tot de achtertuin.
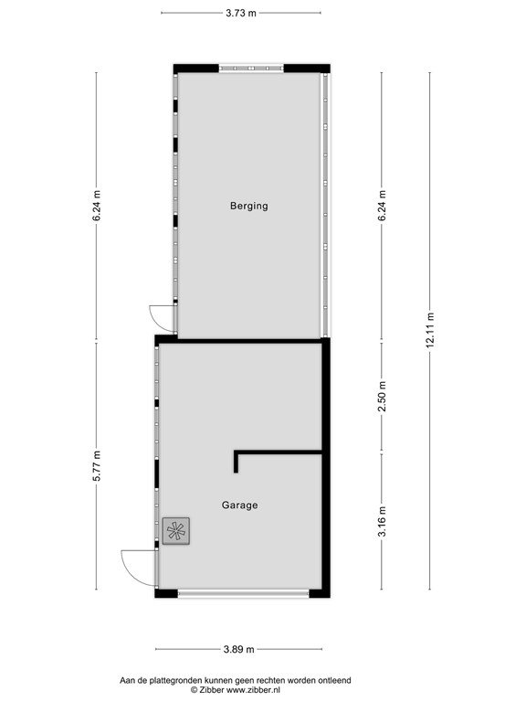
De royale berging van ca. 40 m² bevindt zich achter de woning.
De diepe achtertuin biedt volop privacy en is ingericht met een ruim terras en gazon – een fijne plek om te genieten van rust, ruimte en zon.
Wat kun je nog meer verwachten
• In 2017 volledig gestript tot casco en opnieuw opgebouwd
• Volledig vernieuwde leidingen voor gas, water en elektra
• Nieuwe meterkast
• Strak gestucte wanden en plafonds
• Nieuwe binnendeuren en kozijnen
• Voorzieningen aanwezig voor elektrische rolluiken of screens
• Alle slaapkamers, woonkamer en keuken voorzien van loze leidingen richting meterkast
• Voorbereiding voor gashaard in woonkamer (gasleiding reeds aanwezig)
• CV per verdieping regelbaar via aparte thermostaat
• Aansluiting voor toilet op badkamer aanwezig
• De aanbouw is met het oog op de toekomst geconstrueerd; hierbij is rekening gehouden met de benodigde voorzieningen, zodat het mogelijk is om in de toekomst een opbouw te realiseren.
• Energielabel B (geldig tot 10-11-2035)
• Uitstekende bereikbaarheid via diverse uitvalswegen, waaronder A2 Maastricht–Eindhoven
• Verkoper verlangt een waarborgsom/bankgarantie van 10% van de koopsom
Interesse?
Deze woning is met recht instapklaar en biedt alles wat je zoekt: ruimte, comfort, moderne afwerking en een uitstekende ligging.
Maak snel een afspraak voor een bezichtiging en ontdek zelf wat deze prachtige woning te bieden heeft!
Plattegronden
179182729_1590373_burg_begane_grond_first_design_20251111_6ca71b.jpg
179182729_1590373_burg_eerste_verdiepi_first_design_20251111_171232.jpg
179182729_1590373_burg_zolder_first_design_20251111_eabf76.jpg
179182729_1590373_burg_kelder_first_design_20251111_40a442.jpg
179182729_1590373_burg_garage_first_design_20251111_d0bee1.jpg