Beschrijving
Leuke tweekapper met vrijstaande garage met carport en tuin
Aan de Sint Lambertusstraat 13 in Budel-Schoot staat deze degelijk onderhouden twee-onder-een-kapwoning met vrijstaande garage, carport en royale oprit.
Een fijne gezinswoning op een rustige en goede locatie, met volop mogelijkheden om te moderniseren en te verduurzamen.
Indeling
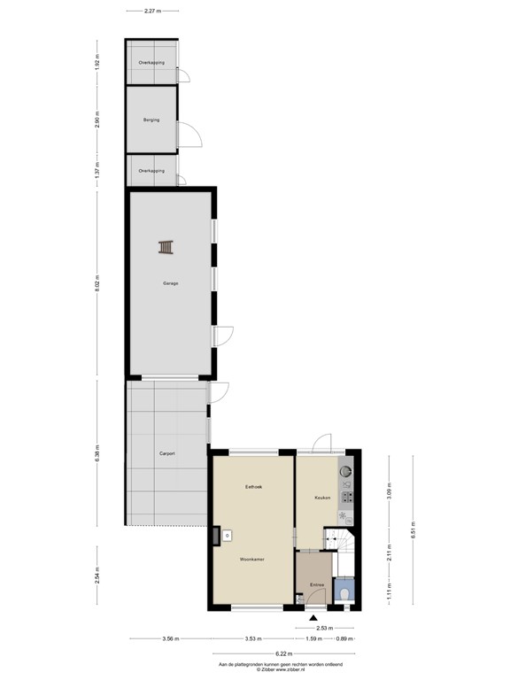
Begane grond
Via de voortuin met diepe oprit bereikt u aan de voorzijde van de woning de entree. In de hal vindt u het toilet, de trapopgang naar de eerste verdieping en de toegang tot de keuken.
De gesloten keuken is uitgevoerd in een lichte kleurstelling met granieten aanrechtblad en voorzien van een 4-pits gaskookplaat, afzuigkap, combi-magnetron en koelkast. Ook is er een praktische kelderkast aanwezig. Vanuit de keuken is er toegang tot de doorzonwoonkamer, een lichte en gezellige ruimte met grote raampartijen, oud-Hollands plafond en houtkachel.
Eerste verdieping
De overloop geeft toegang tot drie slaapkamers, allen mooi van formaat, en een grote muurkast.
De moderne badkamer beschikt over een inloopdouche, wastafel in meubel, toilet en aansluiting voor witgoed.
Zolder
Via een vlizotrap is de bergzolder bereikbaar. Hier bevinden zich de CV-installatie (Bosch, 2010) en extra bergruimte. Het dakraam zorgt voor extra licht op zolder.
Buitenruimte
De woning beschikt over een ruime vrijstaande garage met smeerput, elektra, kantelpoort en een ruime bergzolder.
Daarnaast is er een carport en een royale oprit met plek voor meerdere auto’s.
Achter de woning ligt een achtertuin met terras, elektrisch zonnescherm en stenen berging. Een fijne buitenruimte met veel mogelijkheden voor ontspanning of tuinieren.
Wat kunt u nog meer verwachten?
• Hardhouten kozijnen met thermopane glas
• Energielabel F (geldig tot 03-10-2035)
• Ruime garage met carport en smeerput en ruime bergzolder
• Veel privacy in de achtertuin
• Rustige ligging nabij voorzieningen en de A2
• Verkoper verlangt een waarborgsom/bankgarantie ter grootte van 10% van de koopsom
Met wat modernisering maak je hier een comfortabel en toekomstbestendig thuis – ideaal voor wie op zoek is naar rust en ruimte.
Interesse?
Voor vragen, meer informatie of een vrijblijvende bezichtiging, kunt u contact opnemen met ons verkoopteam. Een leuke, degelijk gebouwde tweekapper met volop ruimte, een heerlijke tuin en veel potentie.
Plattegronden
177618733_1583233_sint_begane_grond_first_design_20251003_163ddb.jpg
177618733_1583233_sint_eerste_verdiepi_first_design_20251003_91aaf4.jpg
177618733_1583233_sint_zolder_first_design_20251003_41049b.jpg
177618733_1583233_sint_berging_first_design_20251003_1260a1.jpg