Beschrijving

Aan de Stationsweg 91 in Budel-Dorplein staat deze fraaie nieuwbouw hoekwoning te huur. De woning biedt een moderne uitstraling en een comfortabele indeling, gecombineerd met een fijne tuin en berging. Een ideale plek voor wie rustig wil wonen met alle dagelijkse voorzieningen binnen handbereik.

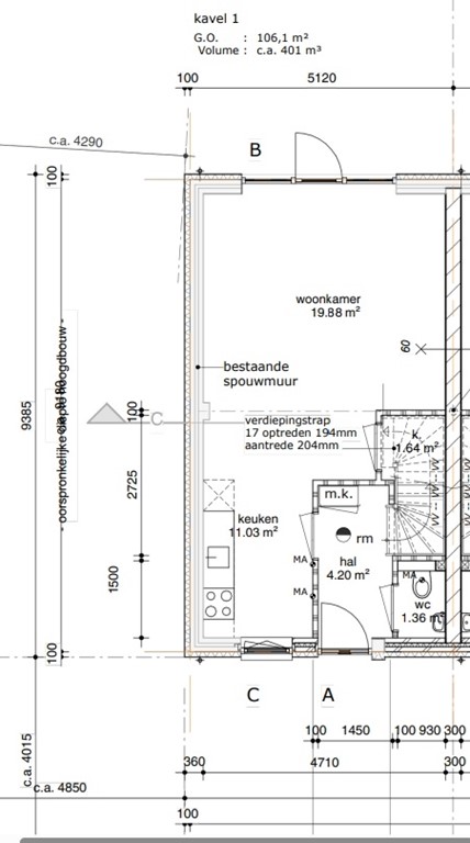
Begane grond
Bij binnenkomst in de hal vind je de toegang tot het toilet met wandcloset en fonteintje, de trapopgang naar de eerste verdieping en de doorgang naar de woonkamer. De lichte woonkamer is voorzien van een grote raampartij aan de achterzijde en een deur naar het terras, waardoor er veel natuurlijk licht binnenvalt. Vanuit de woonkamer bereik je de open keuken, die compleet is uitgerust met een inductiekookplaat, afzuigkap, vaatwasser, koelkast en combi-magnetron. Onder de trap bevindt zich een praktische trapkast.

Eerste verdieping
Op de eerste verdieping liggen twee comfortabele slaapkamers van circa 20 m² en 10 m². De moderne badkamer is uitgerust met een inloopdouche, wastafel en toilet. 

Zolder
Via een vaste trap bereik je de tweede verdieping, waar een ruime zolder te vinden is. Deze verdieping biedt de mogelijkheid om een derde slaapkamer te creëren en beschikt bovendien over een aparte technische ruimte.

Buiten
Rondom de woning bevinden zich een voortuin, een zijtuin en een achtertuin met terras en berging. De tuin is omheind met hekwerk en biedt de mogelijkheid om deze naar eigen smaak aan te leggen met gazon en/of beplanting.

Wat kun je nog meer verwachten:
• De huurprijs is exclusief gas, water en elektra. 
• Vloerverwarming op de begane grond en 1e verdieping.
• Voldoende parkeergelegenheid in de directe omgeving.
• Wand-, vloer- en raambekleding dienen door de huurder zelf te worden aangebracht.
• Er wordt een borg van 2 maanden huur gevraagd. 
• De minimale huurtermijn bedraagt 24 maanden.

Heb je interesse in deze moderne en comfortabele woning? Neem dan gerust contact op met ons kantoor voor meer informatie over de huurvoorwaarden of om een bezichtiging in te plannen.

Kenmerken